Dom na sprzedaż Szczecin, Mierzyn

4 pokoje
79.04 m²
10 108,81 zł/m2
MAPA-DS-22

799 000 zł

Dom na sprzedaż
Bez prowizji

Szczegóły oferty

Symbol oferty MAPA-DS-22
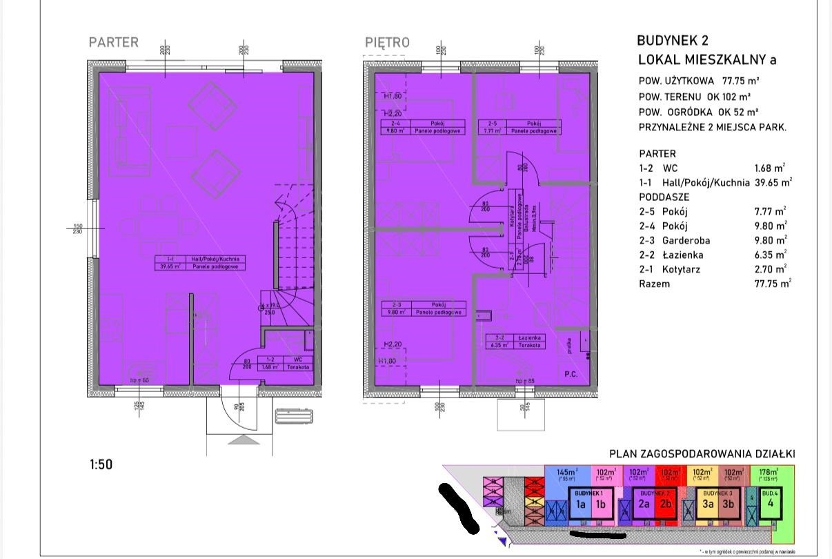
Powierzchnia 79,04 m²
Powierzchnia działki [m2] 103 m²
Liczba pokoi 4
Rodzaj domu bliźniak
Standard
Liczba pięter w budynku 1
Okna PCV
Instalacje ELEKTRYCZNA
Liczba tarasów 1
Zagosp. działki zagospodarowana
Kształt działki prostokąt
Stan budynku do wykończenia
Ogrodzenie działki siatka w ramach
Rok budowy 2025
Gaz brak
Woda pompa
Dojazd asfaltowa/kostka
Otoczenie działki zabudowane
Ogrzewanie pompa ciepła
Umeblowanie brak
Tarasy taras
Prąd jest
Kanalizacja tak

Opis nieruchomości

Na sprzedaż nowe lokale mieszkalne w zabudowie bliźniaczej – Mierzyn / Kupujący nie płaci prowizji

W sprzedaży dostępne są 4 lokale mieszkalne w nowoczesnej zabudowie bliźniaczej. Inwestycja została zakończona, lokale są gotowe do wydania od razu po zapłacie.

Podstawowe informacje:
    •    liczba pokoi: 4
    •    typ zabudowy: bliźniak
    •    rok budowy: 2025
    •    liczba pięter: 1
    •    poddasze: nieużytkowe
    •    powierzchnia lokali: ok. 78,7–79,0 m²
    •    powierzchnia działki do wyłącznego korzystania: ok. 102–103 m²
    •    ogródek: ok. 52 m²
    •    2 miejsca postojowe do każdego lokalu

Dostępne lokale i ceny (brutto, 8% VAT):
    •    3 lokale w stanie deweloperskim – ceny od 770 000 zł do 799 000 zł
    •    1 lokal w standardzie wykończonym – 899 000 zł

Lokal wykończony obejmuje m.in.: ogrzewanie podłogowe, panele, gładzie i malowanie ścian, kafle w przedpokoju i części kuchennej, oświetlenie, drzwi wewnętrzne oraz w pełni wykończoną łazienkę.

Standard inwestycji:
    •    elektryczne ogrzewanie podłogowe
    •    pompa ciepła
    •    woda i kanalizacja z sieci gminnej
    •    sprzedaż bez podatku 2% PCC

Dodatkowo płatny jednorazowo udział w drodze wewnętrznej: 6 150 zł brutto.

Warunki zakupu:
    •    płatność 100% (inwestycja zakończona)
    •    wydanie kluczy bezpośrednio po zapłacie

Lokalizacja:
Mierzyn – atrakcyjna lokalizacja w bezpośrednim sąsiedztwie Szczecina, z pełną infrastrukturą handlowo-usługową oraz dobrą komunikacją.

Kalkulatory

Kalkulator kosztów

Taksa notarialna
(opłata notarialna)

Wniosek o wpis do KW

VAT od prowizji
agencji nieruchomości

VAT od taksy notarialnej
(opłaty notarialnej)

Prowizja agencji nieruchomości

Wypisy aktu notarialnego

Razem

Uwaga: mogą wystąpić dodatkowe opłaty za założenie księgi wieczystej oraz ustanowienie hipoteki.

PLN
PLN
PLN
PLN
PLN
%
PLN

Agent

Proszę wprowadzić poprawne imię i nazwisko
Proszę wprowadzić poprawny numer telefonu
Proszę wprowadzić poprawny adres e-mail
Proszę zaznaczyć wymagane zgody
Rozwiąż równanie:
28 9
Niepoprawny wynik